PROJECTS
INFO
PROJECTS
INFO
ARKT STUDIO
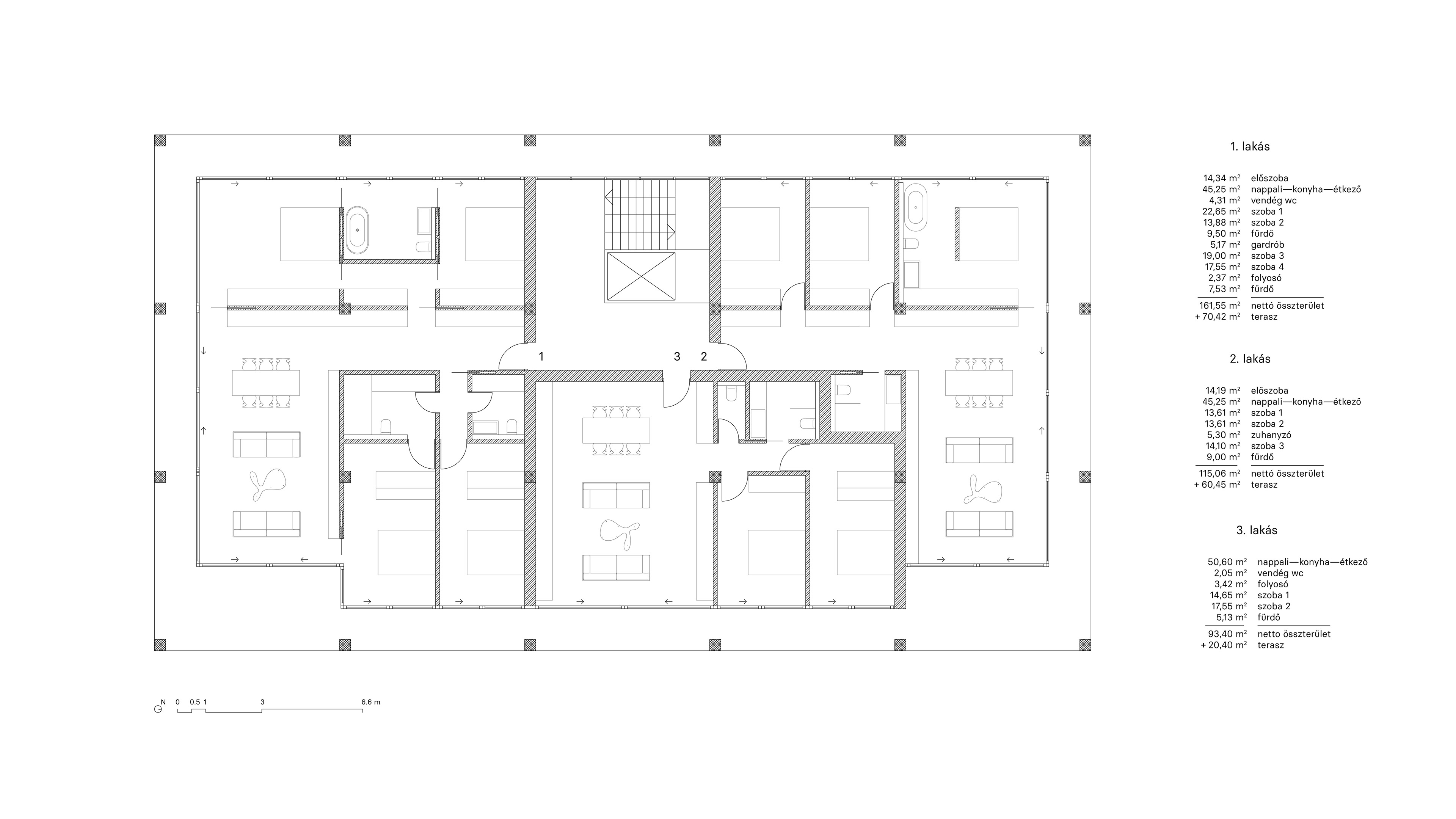
Malomárok housing
concept plan
mátrafüred, hungary,
2021
17 200 m2
arkt studio +
projectroom
Gábor Fábián DLA,
Veronika Juhász
Visual design––
projectroom
↑
Back to Top