PROJECTS
INFO
PROJECTS
INFO
ARKT STUDIO
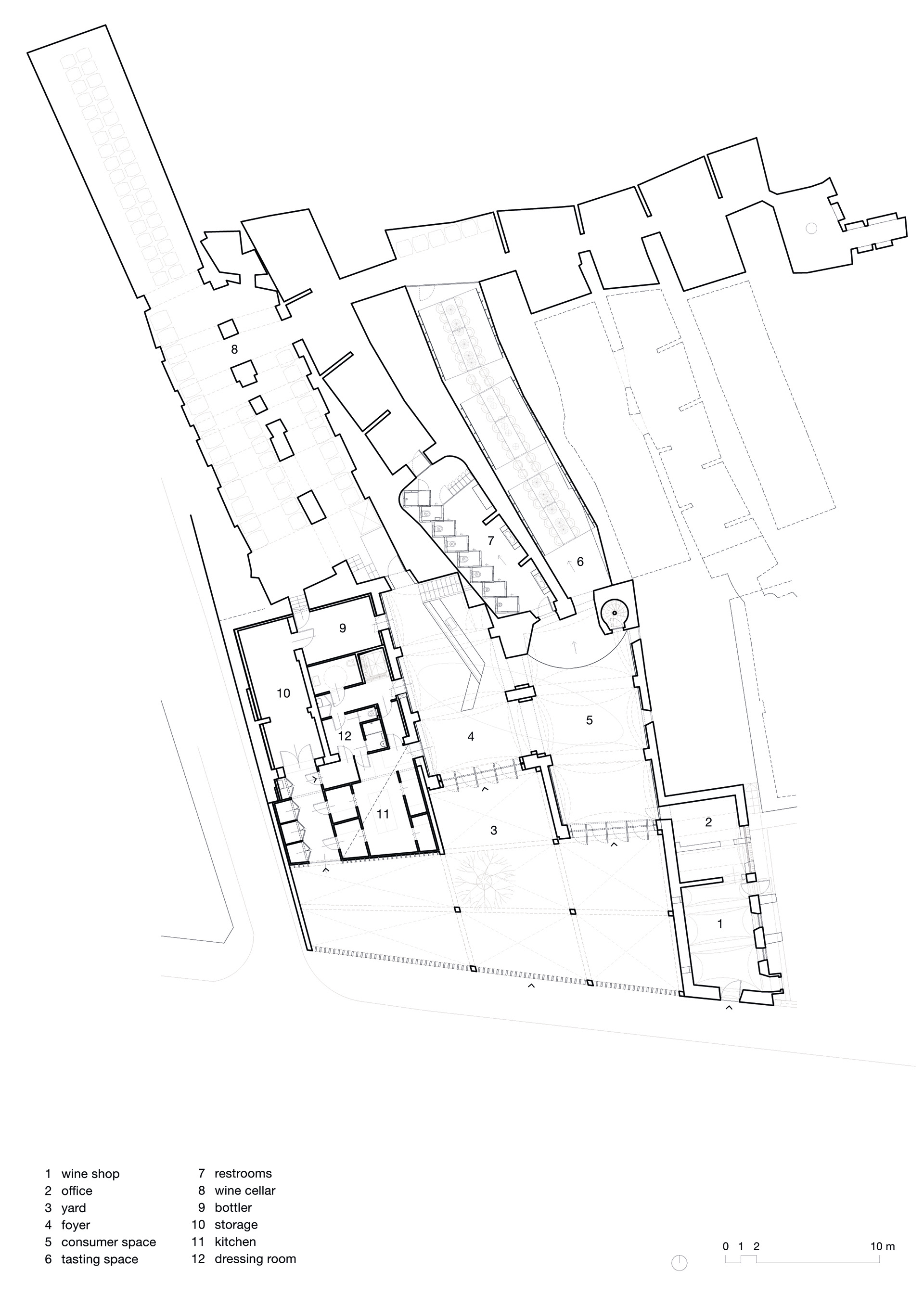
Fusion – Gál Tibor Winery, Eger
Eger, Hungary, 2011–2014
2100 m2
Photo––Árpád Pintér, Tibor Szántó,
Dénes Fajcsák, LÁSZLÓ MUDRI
Gábor Fábián DLA, Dénes Fajcsák
Interior Design––
projectroom
Veronika Juhász
EUMIES AWARDS –– 2015 NOMINEE
VIDEO
↑
Back to Top